Search

Leave a Message

Thank you for your message. We will be in touch with you shortly.

Explore Our Properties

Property Description

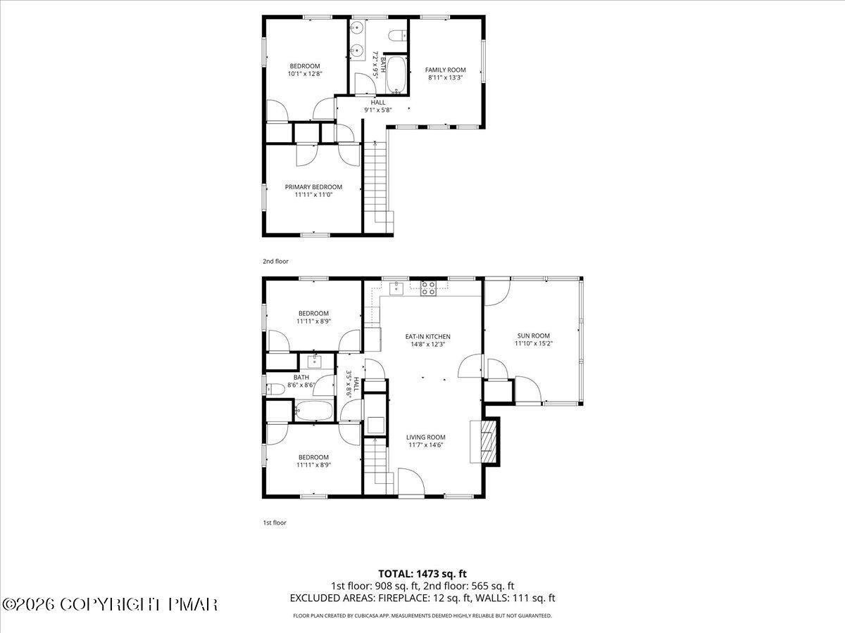
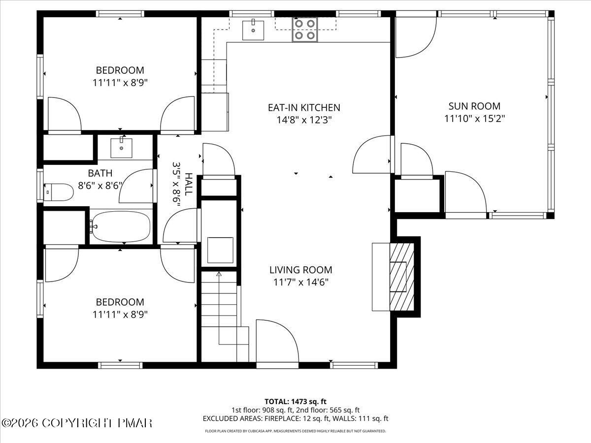
Come before it's GONE. Bright contemporary home with a GREAT LAYOUT featuring 4 bedrooms, 2 full bathrooms, a loft and an ALL SEASON room. Home was fully REMODELED in recent years, 6 minisplits through out for heating & cooling, hardwood floors, modern bathrooms w/ heated floors, new hot water heater and a whole house water filter. Enjoy an oversized deck during the summer, cozy up by the fireplace in the winter, and in between, enjoy a nice size all season room.

Overview

Property Status
For Sale
Lot Size
0.47 Acres
MLS ID
PM-140585
Property Type
Residential
Year Built
1986

Features & Amenities

Total Area
1,473 Sq.Ft.
Neighborhood
East Stroudsburg
Architecture Styles
Contemporary
Stories
2
Water Source
Well
Utilites
Propane Tank Leased
Heat Type
Baseboard, Ductless, Electric
Air Conditioning
Ductless
Fireplace
Living Room, Propane
Appliances
Electric Range, Refrigerator, Dishwasher, Stainless Steel Appliance(s)
Sewer
On Site Septic
Substructure
Block
HOA Amenities
Clubhouse, Playground, Outdoor Pool, Indoor Pool, Basketball Court
School District
East Stroudsburg Area
Sales Price
$350,000
Real Estate Tax
$3,803/yr
HOA
$950/yr

Downloads

116 Clubhouse Drive

Schedule a Tour

We would love to help you see this beautiful home! As a full-service brokerage, we can help you tour. Please submit an offer, and answer questions about the buying process.

Thank you

for your interest in 116 Clubhouse Drive, East Stroudsburg, PA 18302

116 Clubhouse Drive
Navigate
East Stroudsburg

Explore East Stroudsburg

read more

Mortgage Calculator

Estimate your monthly mortgage payment, including the principal and interest, property taxes, and HOA. Adjust the values to generate a more accurate rate.
$0,000 Your Payment 20 15 65
$0,000 Your Payment

116 Clubhouse Drive

or
  • CallIzabela Pierscionek

    License #RS349025

    (862) 215-6582
  • Current Listings

    Learn more about our property offerings and schedule a showing with our team.

    • 625 Main Pending

      $2,950,000

      625 Main, Stroudsburg, PA 18360

    • 625 Main Street Pending

      $2,950,000

      625 Main Street, Stroudsburg, PA 18360

    • 208 S Main Street For Sale

      $1,326,894

      208 S Main Street, Moscow, PA 18444

      • 13,519 Sq.Ft.
    • 2115 Mink Lane For Sale

      $829,000

      2115 Mink Lane, Long Pond, PA 18334

      • 5 Beds
      • 3 Baths
      • 3,161 Sq.Ft.
    • 1149 Pocono Blvd (STATE ROUTE 611) Boulevard For Sale

      $749,000

      1149 Pocono Blvd (STATE ROUTE 611) Boulevard, Mount Pocono, PA 18344

    • 199 Highland Road For Sale

      $699,000

      199 Highland Road, East Stroudsburg, PA 18301

      • 5 Beds
      • 3 Baths
      • 3,572 Sq.Ft.
    • 603 Washington Crossing Pending

      $634,900

      603 Washington Crossing, East Stroudsburg, PA 18301

      • 4 Beds
      • 5 Baths
      • 5,069 Sq.Ft.
    • 2487 Mountain Road For Sale

      $465,000

      2487 Mountain Road, Stroudsburg, PA 18360

      • 3 Beds
      • 3 Baths
      • 2,100 Sq.Ft.
    • 14 W Chickadee Lane For Sale

      $449,000

      14 W Chickadee Lane, Albrightsville, PA 18210

      • 4 Beds
      • 3 Baths
      • 2,000 Sq.Ft.
    • 3143 Bear Swamp Road For Sale

      $430,000

      3143 Bear Swamp Road, East Stroudsburg, PA 18302

      • 4 Beds
      • 3 Baths
      • 2,680 Sq.Ft.
    • 112 High Mountain Lane For Sale

      $425,000

      112 High Mountain Lane, Tannersville, PA 18372

      • 3 Beds
      • 3 Baths
      • 1,428 Sq.Ft.
    • 1670 Erie Court, Effort Pending

      $415,000

      1670 Erie Court, Effort, PA 18330

      • 4 Beds
      • 3 Baths
      • 2,391 Sq.Ft.
    • 2048 Algonquin Way Pending

      $405,000

      2048 Algonquin Way, Tobyhanna, PA 18466

      • 5 Beds
      • 3 Baths
      • 2,018 Sq.Ft.
    • 2241 Ridge Road For Sale

      $399,000

      2241 Ridge Road, Upper Mt Bethel Twp, PA 18013

      • 3,200 Sq.Ft.
    • 304 Whipporwill Lane For Sale

      $399,000

      304 Whipporwill Lane, East Stroudsburg, PA 18302

      • 4 Beds
      • 3 Baths
      • 2,668 Sq.Ft.
    • 4262 Buck Hill Circle For Sale

      $399,000

      4682 Buck Valley Circle, East Stroudsburg, PA 18301

      • 3 Beds
      • 3 Baths
      • 1,875 Sq.Ft.
    • 1486 N Rocky Mountain Drive For Sale

      $355,000

      1486 N Rocky Mountain Drive, Effort, PA 18330

      • 3 Beds
      • 3 Baths
      • 1,682 Sq.Ft.
    • 116 Clubhouse Drive For Sale

      $350,000

      116 Clubhouse Drive, East Stroudsburg, PA 18302

      • 4 Beds
      • 2 Baths
      • 1,473 Sq.Ft.
    • Masthope Plank Road, Lot 7 For Sale

      $330,000

      Masthope Plank Road, Lot 7, Lackawaxen, PA 18435

    • 64 Robertson Road For Sale

      $329,000

      64 Robertson Road, Penn Forest Twp, PA 18229

      • 3 Beds
      • 2 Baths
      • 1,418 Sq.Ft.
    • 120 Linn Circle For Sale

      $325,000

      120 Linn Circle, Bushkill, PA 18324

      • 3 Beds
      • 2 Baths
      • 1,536 Sq.Ft.
    • 220 Hawthorne Village Court For Sale

      $325,000

      220 Hawthorne Village Court, East Stroudsburg, PA 18302

      • 3 Beds
      • 3 Baths
      • 2,280 Sq.Ft.
    • 107 Juniper Drive For Sale

      $310,000

      107 Juniper Drive, Greentown, PA 18426

      • 5 Beds
      • 2 Baths
      • 2,016 Sq.Ft.
    • 19 McKinley Lane Pending

      $295,900

      19 McKinley Lane, Albrightsville, PA 18210

      • 3 Beds
      • 2 Baths
      • 1,104 Sq.Ft.
    • 1528 Belgravia Drive For Sale

      $289,000

      1528 Belgravia Drive, Tobyhanna, PA 18466

      • 3 Beds
      • 2 Baths
      • 1,857 Sq.Ft.
    • 170 Dover Drive For Sale

      $280,000

      170 Dover Drive, Bushkill, PA 18324

      • 3 Beds
      • 2 Baths
      • 1,134 Sq.Ft.
    • 6302 Ventnor Drive For Sale

      $265,000

      6302 Ventnor Drive, Tobyhanna, PA 18466

      • 4 Beds
      • 2 Baths
      • 1,656 Sq.Ft.
    • 9491 Juniper Drive For Sale

      $258,400

      9491 Juniper Drive, Tobyhanna, PA 18466

      • 2 Beds
      • 2 Baths
      • 1,360 Sq.Ft.
    • 143 Tepee Drive For Sale

      $235,000

      143 Tepee Drive, Pocono Lake, PA 18347

      • 3 Beds
      • 1 Bath
      • 816 Sq.Ft.
    • 513 Fairgrounds Road For Sale

      $185,000

      513 Fairgrounds Road, Gilbert, PA 18331

    • 317 Keswick Avenue For Sale

      $149,900

      317 Keswick Avenue, Bushkill, PA 18324

      • 1 Bed
      • 1 Bath
      • 1,104 Sq.Ft.
    • 1412 Johns Road For Sale

      $124,900

      1412 Johns Road, Effort, PA 18330

      • 3 Beds
      • 1 Bath
      • 912 Sq.Ft.
    • 16 & 17 Summit Dr Drive, East Stroudsburg For Sale

      $85,000

      16 & 17 Summit Dr Drive, East Stroudsburg, PA 18302

    • 16 & 17 SUMMIT Drive For Sale

      $85,000

      16 & 17 SUMMIT Drive, East Stroudsburg, PA 18302

    • 16 SUMMIT Drive For Sale

      $45,900

      16 SUMMIT Drive, East Stroudsburg, PA 18302

    • 17 Summit Dr 17 Drive, East Stroudsburg For Sale

      $45,900

      17 Summit Drive, East Stroudsburg, PA 18302

    • 17 SUMMIT Drive For Sale

      $45,900

      17 SUMMIT Drive, East Stroudsburg, PA 18302

    • Summit Dr 16, East Stroudsburg For Sale

      $45,900

      Summit Dr 16, East Stroudsburg, PA 18302

    • ALPHA Drive For Sale

      $45,000

      ALPHA Drive, Stroudsburg, PA 18360

    • Pocono Forested Dr 22 Drive For Sale

      $35,000

      Pocono Forested Dr 22 Drive, East Stroudsburg, PA 18302

    • White Oak Road, 8605 For Sale

      $35,000

      White Oak Road, 8605, Lehighton, PA 18235

    • Berry Lane For Sale

      $32,500

      Berry Lane, lot 206, Cresco, PA 18326

    • 46 ONOCO Drive For Sale

      $25,900

      46 ONOCO Drive, Pocono Lake, PA 18347

    • 9146 Hamlet Drive Pending

      $20,000

      9146 Hamlet Drive, Tobyhanna, PA 18466

    • 103 Brent Road For Sale

      $19,900

      103 Brent Road, Bushkill, PA 18324

    • Lot 87 Red Maple Lane For Sale

      $18,000

      Lot 87 Red Maple Lane, Coolbaugh Township, PA 18466

    • Lace Dr 24 Drive For Sale

      $15,000

      Lace Dr 24 Drive, East Stroudsburg, PA 18302

    • Delaware Trail A 25 Trail For Sale

      $13,000

      Delaware Trail A 25 Trail, Pocono Lake, PA 18347

    • Kinta Cir 13 Circle For Sale

      $13,000

      Kinta Cir 13 Circle, Pocono Lake, PA 18347

    • Omaha Trail 16 Trail For Sale

      $13,000

      Omaha Trail 16 Trail, Pocono Lake, PA 18347

    View All

    Follow Us On Instagram